vendu
Résumé financier
Équipement
Description
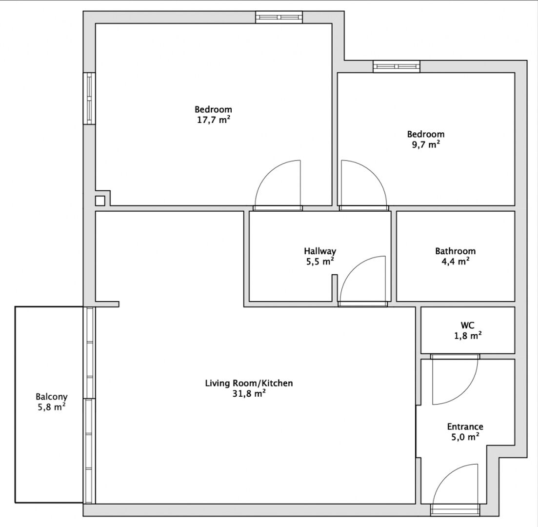
Appartement situé au 2e étage d'une résidence bâtie en 2015, 2 chambres à coucher, d'une surface habitablede 76 m², à Luxembourg-Cessange.
Distribution : Hall d'entrée (5,00 m²) - cuisine équipée ouverte sur le living/salle à manger (31,80 m²) - hall de nuit avec placard aménagé (5,50 m²) - 2 chambres à coucher (17,70 m² + 9,70 m²) - salle de bain (4,40 m²) - WC séparé (1,80 m²)
Inclus : Balcon (5,80 m²) - parking intérieur avec cave attenante - buanderie commune
Complément d'informations :
Confort : Parquet au sol/chêne naturel - triple vitrage PVC/aluminium - appareils électroménagers « Siemens » - sanitaires « Villeroy Boch » - porte de sécurité 3 points - ascenseur - porte de parking automatique
Sanitaires : 1 baignoire - 1 WC séparé - 1 WC non séparé
Chauffage : Gaz
Environnement : Entre ville et nature, proche du quartier « Cloche d'Or », Cessange offre diverses infrastructures : Parc de Cessange, aires de jeux, clubs de sport, bike park Boy Konen, arrêts d'autobus, stations « vel'OH ! » - axes autoroutiers facilement accessibles
Toute offre sur ce bien restera conditionnée à l'acceptation expresse par le(s) propriétaire(s).












